Ce site web est optimisé pour les écrans larges, car il s'agit de naviguer sur des plans. Vous pouvez ajuster le zoom avec [Ctrl] [-] et [Ctrl] [+]

Présentation du projet

Nous proposons des plateaux constitués de lots de chambres allant de 65 à 400 m2 . A l’aide des services de notre architecte* vous pourrez créer votre appartement en adaptant les volumes et l’aménagement au plus prêt de vos souhaits.

Ainsi, vous repensez tout votre espace ou conservez les chambres qui vous conviennent. Ces dernières disposent toutes d’une salle de bain et de toilettes. Vous pourrez les décorer à votre goût et repenser le volume séjour-salon.

Laissez libre court à votre créativité pour concevoir le cocon de vos rêves sur mesure !

En confiant à l’architecte le choix des entrepreneurs et le suivi de la réalisation des travaux, vous bénéficiez d’une solution confortable, sans contraintes et sans frais de promotion.

Découvrez
notre projet et ses environs
sur rendez-vous

M'inscrire pour venir visiter

L'Hotel CARLIT se transforme en appartements de standing


Pour profiter pleinement de ce site, il est recommandé d'utiliser un écran large plutôt qu'un smartphone car il faut visualiser des plans.
Connectez-vous sur :
https://studimo.fr
pour voir ledit site web.
Merci de votre compréhension.

POUR NOUS CONTACTER :

8 Av. d'Espagne,
66120 Font-Romeu-Odeillo-Via
contact@studimo.fr
06 85 73 57 77

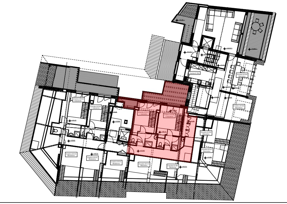
Lots du cinquième étage

Chambre 501

Chambre 501

Chambre 502

Chambre 502

Chambre 504

Chambre 504

Chambre 505

Chambre 505


    Vue complémentaire en 3D des mezanines

    Les lots suivants m'intéresse :

    Form by ChronoForms - ChronoEngine.com

    DES ATOUTS PÉRENNES POUR DEMAIN

    En investissant dans un plateau aménageable, vous avez la possibilité d’agencer votre espace à souhait. Vous pourrez profiter d’un intérieur flambant neuf, tout en conservant le cachet et l’authenticité d’un édifice chargé d’histoire. Le Carlit fait l’objet de rénovations approfondies en phase avec les standards réglementaires sur le plan énergétique et du confort. Des atouts pour aujourd’hui, pérennes pour demain

    Investir dans une copropriété ayant fait l’objet d’une rénovation en vue d’accroitre sa performance énergétique permet de limiter vos dépenses. Vous augmentez durablement votre confort par l’amélioration de l’insonorisation, de la stabilité thermique et de la qualité de l’air.

    Les travaux sont couverts par les garanties décennales qui apportent un gage de tranquillité.
    En outre, votre bien immobilier bénéficiera d’une meilleure note au Diagnostic de Performance Énergétique (DPE), augmentant ainsi sa valeur et ses atouts en cas de revente.

    Un emplacement privilégié